1/1
瀏覽量:
1000
1
產品描述
光熱+空氣源
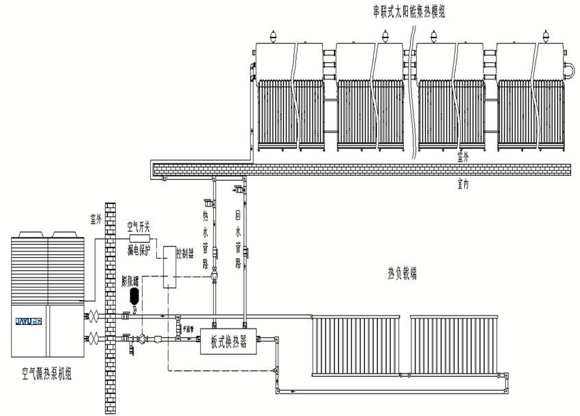
光熱+空氣源熱泵系統組成部分
1.本戶用采暖系統系統由部分構成:光熱采暖機、空氣源熱泵系統、循環水泵、云控器及水路管線等。
2.光熱采暖機安裝在室外屋頂,利用免費光能轉換為熱能;
3.空氣源熱泵安裝在室外,用于無太陽能情況下的補充采暖;
4.循環水泵安裝在室內,實現光熱采暖機與室內散熱暖氣片或地暖的熱量循環;
5.云控器安裝在室內用于控制整個系統運行、數據采集、數據分析、遠程監控、故障提醒及報警等。
光熱+空氣源熱泵系統組成部分
1.本戶用采暖系統系統由部分構成:光熱采暖機、空氣源熱泵系統、循環水泵、云控器及水路管線等。
2.光熱采暖機安裝在室外屋頂,利用免費光能轉換為熱能;
3.空氣源熱泵安裝在室外,用于無太陽能情況下的補充采暖;
4.循環水泵安裝在室內,實現光熱采暖機與室內散熱暖氣片或地暖的熱量循環;
5.云控器安裝在室內用于控制整個系統運行、數據采集、數據分析、遠程監控、故障提醒及報警等。


光熱+空氣源熱泵系統運行原理
“光熱+空氣源熱泵”戶用采暖系統是利用光熱采暖機吸收太陽輻射轉換成熱能。
當云控器檢測到水箱內部溫度達到系統啟動溫度時,云控器控制光熱循環水泵和空氣源熱泵循環水泵,啟動光熱采暖循環模式,把光熱采暖機水箱內的高溫熱,通過換熱器交換到空氣源熱泵循環管路中,從而將熱量傳遞到房間內。當室內回水溫度達到設定溫度后,控制系統停止運行水泵的循環功能,如此往復循環,實現本系統的供暖功能。
當天氣不好或其他原因,太陽輻射能量不充足,水箱內水溫不能滿足啟動采暖功能使用要求時,云控器控制啟動空氣源熱泵采暖循環模式,啟動空氣源熱泵,將通過其內部的水加熱,從而將熱量傳遞到房間內,提升房間內的環境溫度??諝庠礋岜每勺詣诱{節工作功率,使室內回水溫度控制在設定溫度范圍內。
系統優勢

系統參數
|
型號 |
容量(L) |
熱管數量(支) |
熱輸出(kW) |
輪廓采光面積(㎡) |
調溫范圍 |
|
JYGN22-Ka80-3 |
320 |
80 |
20 |
10 |
常溫~80;更適用暖氣片散熱末端 |
|
總重量(kg) |
傾斜角度 |
需要入戶線(平) |
維持功率(kW) |
采暖建筑面積(㎡) |
|
|
600 |
45° |
鋁6/銅4 |
0.1 |
<75 |
系統功能


未找到相應參數組,請于后臺屬性模板中添加

